Vila „Ruduo“
gyvenamojo namo statybos projektas
↓
Projekto vadovė: S. Balčiūtė
Architektė: S. Balčiūtė
Pastato bendrasis plotas: apie 50 m²
Aukštų skaičius: 1
Projektavimo metai: 2021




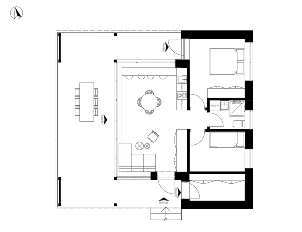
Planas




Fasadai




Variantas A
Variantas B




Realizacija
Realizacija
gyvenamojo namo statybos projektas
Projekto vadovė: S. Balčiūtė
Architektė: S. Balčiūtė
Pastato bendrasis plotas: apie 50 m²
Aukštų skaičius: 1
Projektavimo metai: 2021




Planas




Fasadai




Variantas A
Variantas B




Realizacija
Realizacija
