Vila I
gyvenamojo namo statybos projektas
Projekto vadovė: D. Abelkienė
Architektė: S. Balčiūtė
Pastato bendrasis plotas: apie 128 m²
Aukštų skaičius: 1
Projektavimo metai: 2020
↓


Vizualizacija


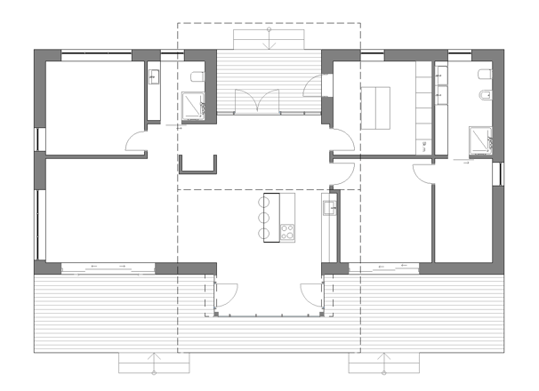
Pirmo aukšto planas


Stogo planas
Fasadas




Pjūvis
Fasadas


gyvenamojo namo statybos projektas
Projekto vadovė: D. Abelkienė
Architektė: S. Balčiūtė
Pastato bendrasis plotas: apie 128 m²
Aukštų skaičius: 1
Projektavimo metai: 2020


Vizualizacija


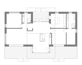
Pirmo aukšto planas


Stogo planas
Fasadas




Pjūvis
Fasadas


